PrintButton
IEIE画像 IEIE画像

外観 時間帯によって表情が変わる

IEIE画像

ピアノ教室にちなんだ五線譜の入った駐車場やピアノ庇

IEIE画像

エントランスの家型の中にトイレの家型があり、天井のエッジから光が通り抜ける

IEIE画像

いくつもの家型が入れ子に展開していき、その家型をエッジからの光や抜けにより不確かに認識させる

IEIE画像

時間帯によって異なる印象を持つ家型の空間は、一つの強いシーンを記憶させることなく、漠然としたイメージを作り出す

IEIE画像

夜は自然光だけでなく、照明も家型の輪郭を曖昧にする。揺らぎのある全体としての現象が生み出される。

IEIE画像 IEIE画像 IEIE画像

小さな家型が大きな家型を支える構造。

IEIE画像

家の中に住んでいるものの、まちに住んでいるような心地よい公共性が生まれている。

IEIE画像

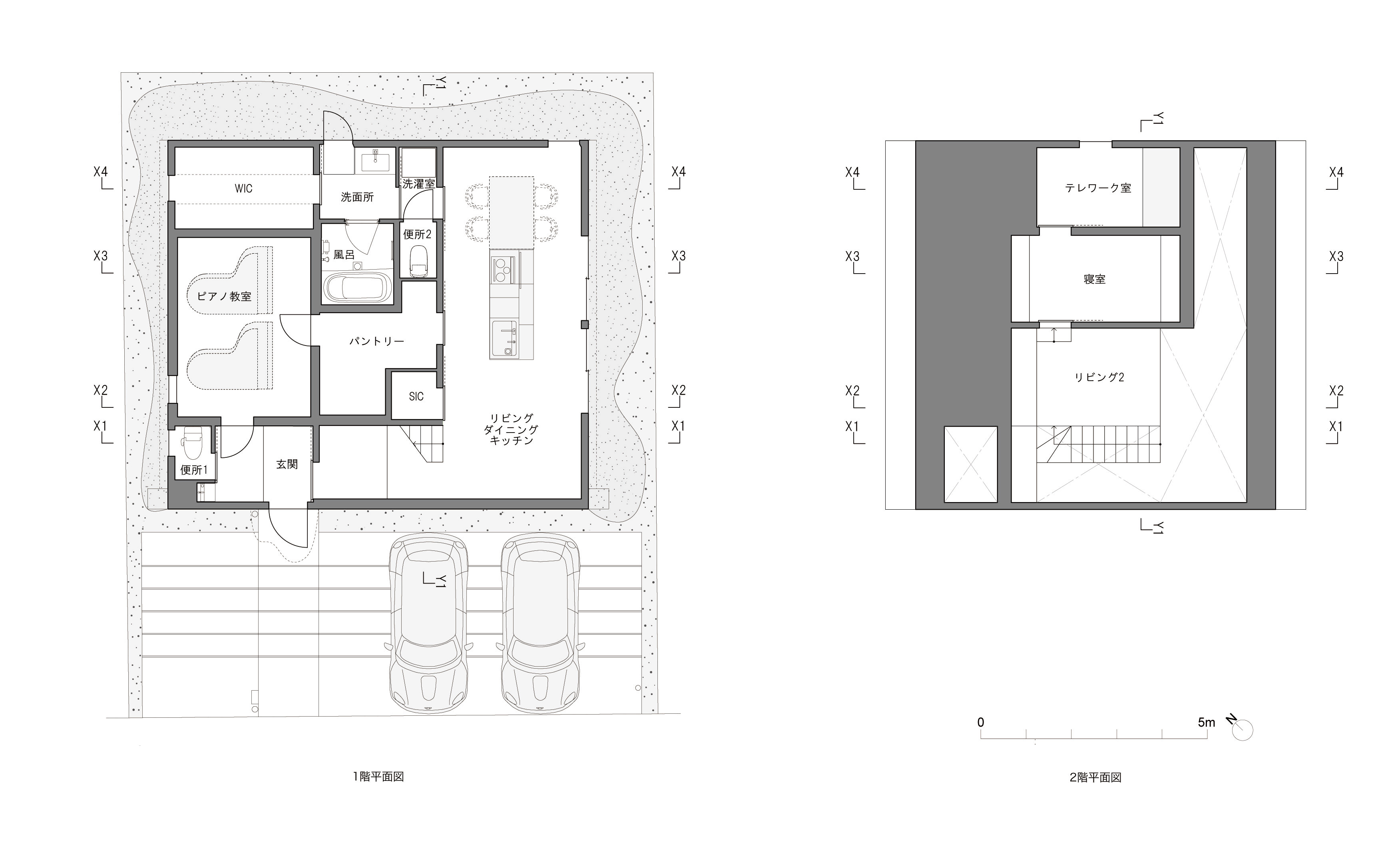
1階リビングとダイニング

IEIE画像

貫通する動線により、向こうの家型を意識できる。合理的な動線や通風をもたらす。

IEIE画像 IEIE画像 IEIE画像

トップライトから刻一刻と移り変わる印象的な光が入る。

IEIE画像 IEIE画像

思い思いに居心地の良い場所を見つけて過ごす。

IEIE画像

家型の金太郎飴のような構造体とすることで、様々なコンバージョンが可能。

IEIE画像

将来の住まい方の変更に対応可能な家型フレーム。