PrintButton
tutumu画像

マーベラスは、アメリカ発の人間工学に基づく家具ブランド、Herman Miller の法人向けの代理店。

tutumu画像

空間づくりは、シンプルなデザインにし、色調もグレーやシルバーで統一しました。
商品とその利用者を主役に引き立てる背景となるため、ショールームやサロンとして、高い機能性をもちます。

tutumu画像

合理的かつ機能的なデザインを行う同ブランドの思想と共鳴するようなショールームを目指しました。

tutumu画像

天井に貼られた金属のルーバーは、全面ガラスの北側から入る光を鈍く反射し、商品の美しさを引き立たせます。

tutumu画像

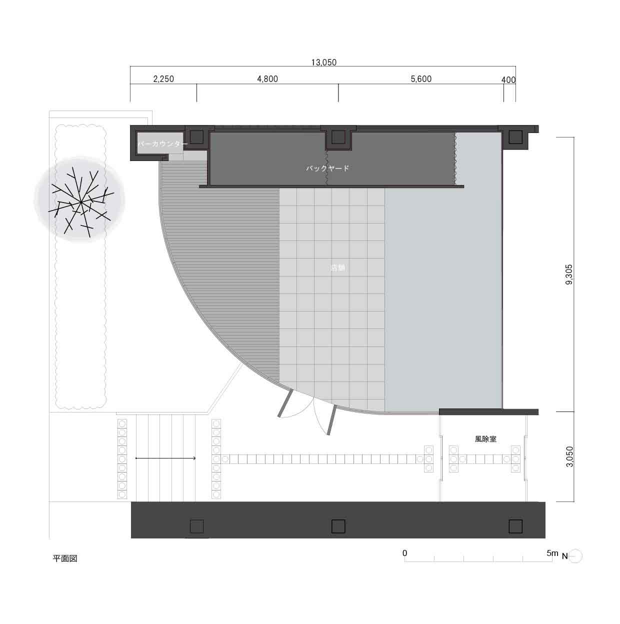
レクチャーの後、パーティーもできるようにミニバーを設けました。

tutumu画像

通りから見ても家具が主役となるショールームとしました。

tutumu画像

れぞれの状況に合わせて商品の使い心地を体験することができるフローリング・タイル・カーペットの三種類の床材。

tutumu画像 tutumu画像

空間仕切壁はプロジェクターを映すスクリーンの役割ももっており、イベントを行うサロンとしても利用可能。
ショールームに置いてある椅子やテーブルを使うことで、
実際に使うときの使用感や、長時間座るときの座り心地などをより実感できる場となっています。